Modelagem BIM - Residencial

Modelar residências a partir de nuvens de pontos é uma estratégia comprovada, que oferece precisão, agilidade e economia. O sucesso depende de um bom planejamento, da definição clara de detalhes (LOD) e tolerâncias, de um fluxo de trabalho consistente e de um controle de qualidade rigoroso. Assim, seu BIM ‘as-built’ vai além de um modelo 3D, tornando-se um repositório confiável de informações para projetar, orçar, aprovar e construir com total segurança.

Nuvem de Pontos

Modelagem BIM 3D

Residencial perspectiva nuvem 1Residencial perspectiva 1

O Que Entregamos

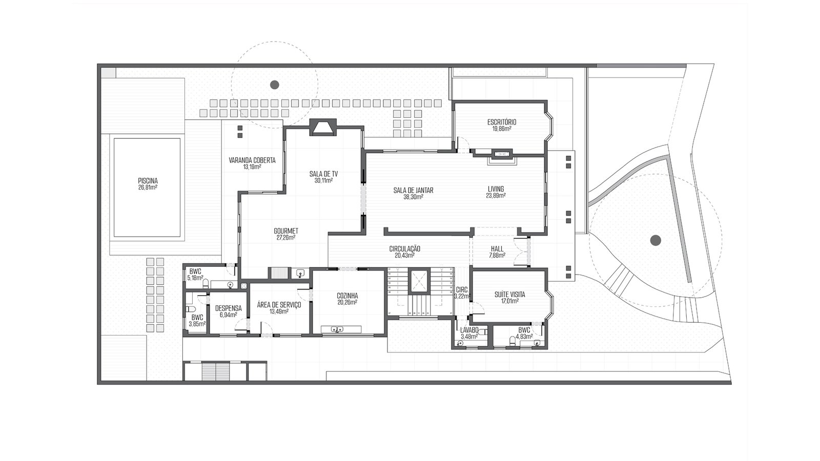
Para projetos arquitetônicos de excelência, a precisão é fundamental. Nossas plantas baixas, cortes e elevações são mais do que simples desenhos; eles são a representação exata da realidade construída, gerados com a avançada tecnologia de modelagem a partir de nuvens de pontos. Essa abordagem garante que cada detalhe, dimensão e relação espacial seja capturado com fidelidade milimétrica, transformando a complexidade do ambiente existente em um conjunto de informações visuais confiáveis. Assim, oferecemos um guia inquestionável para o planejamento estratégico, orçamentação precisa, comunicação clara entre todas as partes e uma execução otimizada da obra, assegurando que seu empreendimento seja construído com máxima segurança e eficiência desde o primeiro traço.

Modelo 360

Rolar para cima